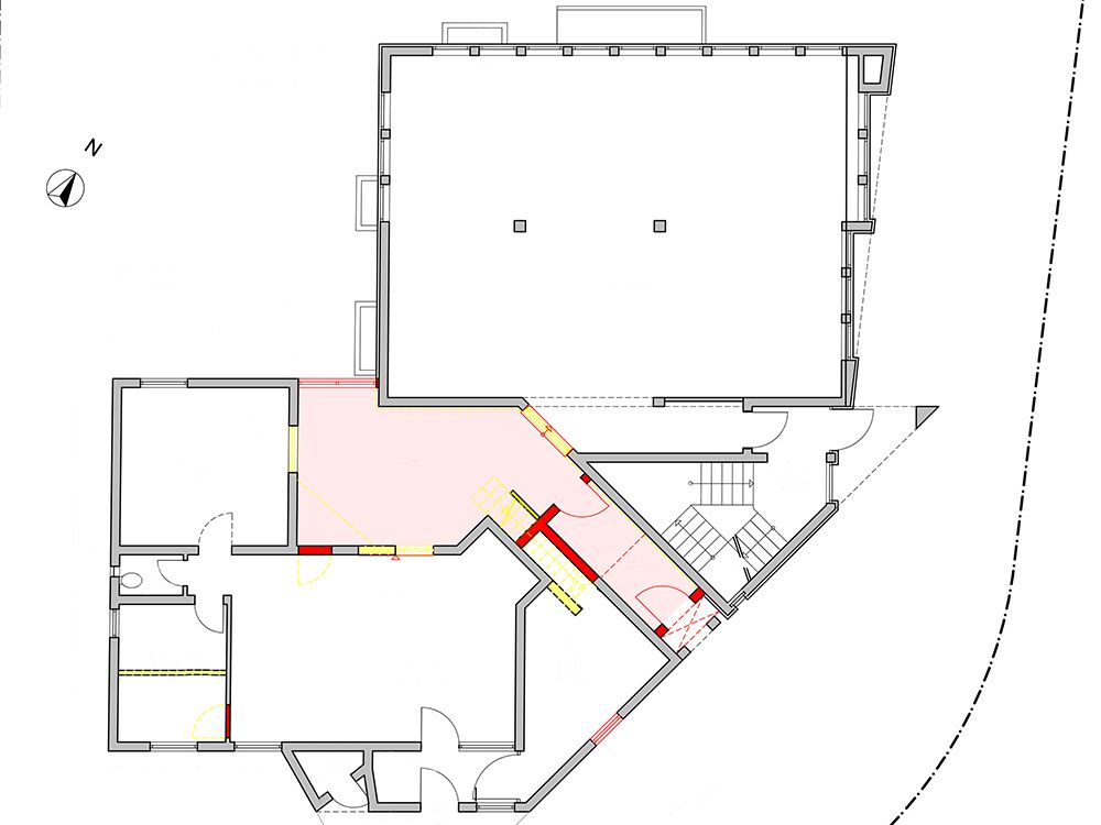
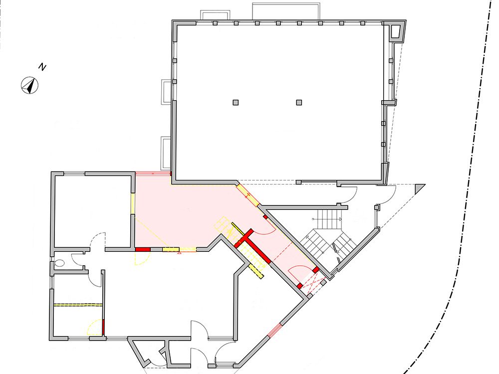
Büroräume K. in Nauheim
Für eine Büroerweiterung werden das EG eines benachbarten Wohnhauses und der Innenhof zwischen zwei Gebäuden umgebaut bzw. überbaut. Es entsteht eine großzügige Bürofläche von 160 qm. Bauzeit war von Mai 2015 bis November 2015.









