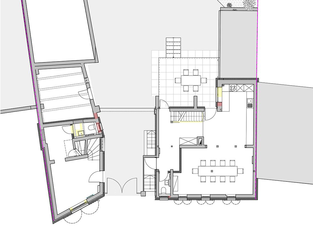
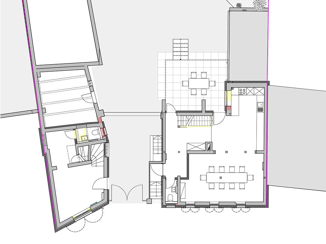
Haus Ma. in Altheim
Die Hofreite aus dem 19. Jahrhundert wurde in den 70er-Jahren umgebaut. Der neuerliche Umbau für eine junge Familie fügt sich in die alte Gesamtstruktur ein. Das Gebäude verändert sich aber durch eine im Bestand entstehende Dachterrasse an der Sonnenseite grundsätzlich. In dem Nebengebäude, frühere Stallungen und Scheunenräume, wird die bestehende Einliegerwohnung ebenfalls umgebaut und grundsaniert. Der komplette Umbau findet im Rahmen einer energetischen Sanierung statt. Es entsteht ein KfW-70-Effizienzhaus. Der Bau wurde 2021 begonnen und ist im Frühling 2022 bezugsfertig.













